百姓厂房网   发布房源 求租求购
百姓厂房网   >      >   重庆高新区直管园独栋墅级厂房可享政策
(编号:284951) 重庆高新区直管园独栋墅级厂房可享政策
发布时间: 2021-10-09 11:19:31 房源状态: 出租中
  • 扫描该【房源】二维码
    查看该【房东】联系方式
  • 浏览
  • 浏览数:4408
    收藏数:0
所在区域: 南充 / 重庆 建筑结构:
厂房面积: 2000 车辆出入:
出租价格: 840 万元 配电容量: KVA
办公面积: 可否分租:
空地面积: 是否独院:
所在楼层: 层      层高: 有无货梯:
具体位置: 重庆-九龙坡-中国平安·重庆高新大健康产业园
详细描述
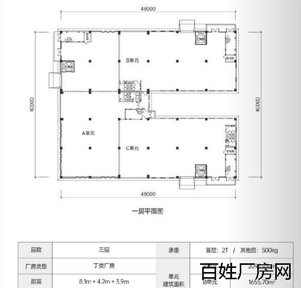
层高8.1米框架厂房,增加企业主实用性 框架结构厂房,防暑御寒能力强,提升生产办公舒适度,提高生产和办公效率 框架结构厂房,节省厂房维修成本,降低安全事故发生率 户型方正,实用面积大(公摊) 交通枢纽: 1、轻轨:5号线距项目1.5KM 2、高速枢纽:紧邻九永高速,重庆绕城高速,成渝高速等 3、距重庆西站20KM,距重庆自贸区19KM,距重庆第二国际机场
【厂房图片】
【地图位置】
【本站点信息均来自转载网络或用户自行上传,其房源信息中陈述文字和内容未经本站证实,对其中全部或者部分内容、文字的真实性、完整性、及时性本站不作任何保证或承诺,信息仅作用户参考,并请自行核实相关内容,如有涉及信息侵犯,请联系我们立即删除。】
猜你查找
江津德感金科智慧科技城独栋标准厂房出租出售
独栋厂房出售,带产权环评,位置好
内环独栋厂房租售,可环评,层高高位置好
渝北空港工业园知新路标准厂房仓库出租
重庆九龙坡区医疗器械园区3000平米起
© 2015-2025 百姓厂房网   -   浙ICP备18033986号-1    浙公网安备 33011002015824号    服务热线:13093751618     服务时间:8:30 - 21:30